易倍新闻
您当前使用的浏览器版本过低,可能存在安全风险,建议升级浏览器,或者用以下浏览器浏览
温馨提示:为了给您提供更高更好的接待服务质量,看房请提前致电售楼处预约!
作为区域的超级引擎,行政学院TOD一体化设计范围达到947亩。众所周知,TOD最显性的特征便是资源的高效配置,是生产、生活、生态等的多元复合,每一个TOD都是一个高品质生活中心与多元化消费极核。

同时,TOD也是交通枢纽中心,2号线号线(规划)在行政学院站交汇,一站接驳30号线,加上三环路、四环路、驿都大道、锦江大道等纵横的城市干道,可以畅通全城。
更为关键的是,作为成都首批示范性站点项目,行政学院TOD已经进入红利兑现期,无论是高效通勤还是繁华商业、公园宜居,都已有实打实的呈现。通过功能整合,一线城市精华资源被浓缩在了板块之内,不仅重塑了区域面貌与形态,更重构了生活方式,革新了居住体验。
名校教育资源、繁华消费场景、顶级医疗配套、生态宜居基底,以及TOD催生的高能级生活圈,行政学院板块已然是高配版“一线”城市生活的重要代言者。

而在行政学院板块的飞升中,快人一步落下先手棋的万科,是“肱股之臣”;单盘最大、定位最高并坐镇核心位置的轨道城市 万科 美的高线公园,是“门面”更是“定海神针”。
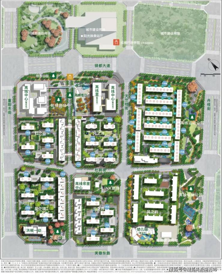
项目占地约289亩(含建设用地212亩与公园及配套用地77亩),规划总建筑面积约 50万㎡,以“TOD高阶复合国际公园社区”为开发思路,规划打造了大平层与叠拼等精品住宅,并落地了教育(2所幼儿园)、商业(含商业塔楼、商业广场、步行商业街区)、邻里中心、公园(6个口袋公园)、慢行系统以及智慧系统等配套,将整个板块的工作、生活、休闲、娱乐等功能有机串联,形成一座生活要素齐备的“微型城市”。

首先,项目共由6个独立公园社区组团构成,保证了单个组团居住氛围的纯粹性。同时,6大组团与6个口袋公园创新地做到了“一对一”,即每个组团都有自己的“后花园”,出门即是入园,密接性与使用率都更高。
其次,在产品定位上,大平层户型起步面积达到了165㎡,叠拼更将尺度上限拉升至297㎡,成为区域的天花板。

叠拼产品同样出彩。譬如建面约297㎡森泊户型,不仅做到了近10米的开窗面,还拥有南北双院落与地下空间,实得率非常高;单层面积超100㎡,既有墅居的多场景感,又有大平层的私享空间;同时赋予产品丰富的改造空间,可以因需制宜,成为“会生长的墅”;采用“全面屏”感光玻璃盒子,达成更广阔的视野……

所谓回归主城,本质就是积极拥抱一线城市生活。从地段位置到生活方式,再到居住标准,全部做到“与主城共一线”,行政学院板块注定会成为城东新一代居住封面。而最坐镇核心的定海神针——高线公园,则是一线城市生活的最佳提供者与运营者。
温馨提示:为了给您提供更高更好的接待服务质量,看房请提前致电售楼处预约!
声明:本文由入驻焦点开放平台的作者撰写,除焦点官方账号外,观点仅代表作者本人,不代表焦点立场。
成都「金牛西派御府」售楼部电线月房价动态(实时更新)_在售房源状态_年末优惠活动
【金牛西派御府】售楼中心热线(已认证) 【金牛西派御府】客户经理电话:(微信同号) 温馨提示:了解更多楼盘信息及最新优惠政策,请致电售楼处! 看房请提前线上致电预约,享开发商内部优惠!
成都「华天龙湖衫峯」售楼部电线月房价动态(实时更新)_在售房源状态_年末优惠活动
【华天龙湖衫峯】售楼中心热线(已认证) 【华天龙湖衫峯】客户经理电话:(微信同号) 温馨提示:了解更多楼盘信息及最新优惠政策,请致电售楼处! 看房请提前线上致电预约,享开发商内部优惠!
成都「中信信悦府」售楼部电线月房价动态(实时更新)_在售房源状态_年末优惠活动
【中信信悦府】售楼中心热线(已认证) 【中信信悦府】客户经理电话:(微信同号) 温馨提示:了解更多楼盘信息及最新优惠政策,请致电售楼处! 看房请提前线上致电预约,享开发商内部优惠!
【建发海耀】售楼中心热线(已认证) 【建发海耀】客户经理电话:(微信同号) 温馨提示:了解更多楼盘信息及最新优惠政策,请致电售楼处! 看房请提前线上致电预约,享开发商内部优惠!
成都「金融城8号」售楼部电线月房价动态(实时更新)_在售房源状态_年末优惠活动
【金融城8号】售楼中心热线号】客户经理电话:(微信同号) 温馨提示:了解更多楼盘信息及最新优惠政策,请致电售楼处! 看房请提前线上致电预约,享开发商内部优惠!
成都「金牛国投上林语」楼盘深度评测:售楼热线、实时报价与房源详情全解析,全面剖析项目核心价值、竞争优势及潜在短板。
成都「合信K101」售楼处电话_户型品质_价格价值分析_1月优惠活动_二八板块公寓总价30万起回报率7%值得买吗
成都「天恒锦上樾」楼盘热线电话 实时房价动态与走势分析 开发商限时优惠补贴政策 首页项目首页入口
成都「鹭岛璟宸壹品」售楼部电话 元旦优惠政策 热销户型解析 2026年最新房价
成都「锦宸院三期观著」售楼中心最新动态:权威楼盘深度测评与热门户型全景解析,实时更新项目进展与购房资讯。
成都「粼湖天境」现已公开售楼热线,同步更新价格动态与精选房源,深度解析项目核心地段优势与户型设计亮点,并整合限时专属优惠资讯。
重庆「华润置地润府」售房部电话 最新房源价格 优劣势分析 楼盘价值梳理
重庆「新希望D10」售房部电话 揭晓楼盘最新优惠政策 楼盘动态更新 楼盘价值解析
重庆「海成云湖郡」售楼中心电线月成交数据 最新优惠活动 楼盘全方位解析
郑重提示:本网站作为房产信息聚合类导航网站,仅为方便广大用户掌握信息而提供一站式无偿浏览、查阅的功能,本站楼盘信息并非广告,最终请以政府部门登记备案及开发商公布为准。错误信息举报电话,邮箱。 或点此进行意见反馈,也可点此进行举报投诉。



